230 Kienle Drive, Piqua, Ohio 45356 Just off I-75, Exit 82 East on St. Rt. 36 Across from Wal-Mart
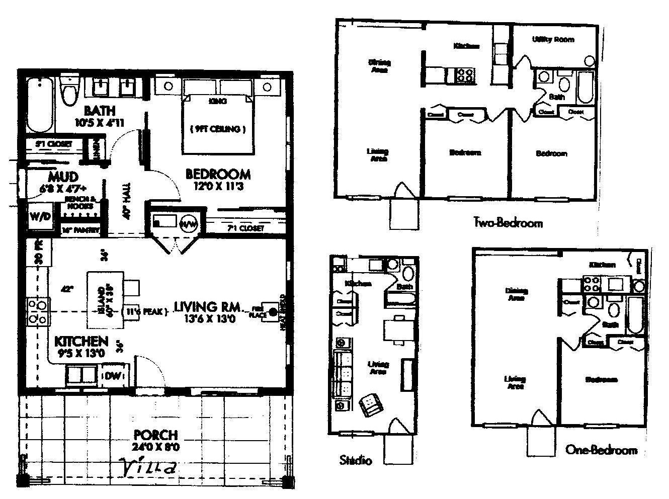
1 Bed
1 Bath
650 SqFt
Piqua, Ohio 45356 Just off I-75 exit 82 East on St. Rt. 36 Across from Wal-Mart
871 SqFt
Search Property
Comfortable and independent living for seniors in a peaceful community.
© 2025
Independent Living. All rights reserved.